Danh mục sản phẩm
HOME
ABOUT US
BRAND IDENTITY
INTERIOR DESIGN
DIRECTIONAL SIGN
VIDEO
070 792 4495
0
Danh mục sản phẩm
HOME
ABOUT US
BRAND IDENTITY
INTERIOR DESIGN
DIRECTIONAL SIGN
VIDEO
0
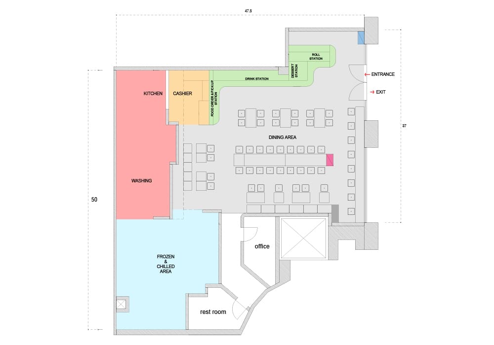
Project: Interior Design
Brand: Pho Hai Hum_San Jose, USA
Year: 2019